Biuro / openspace / magzyn 129m2 do wynajęcia
Bogucin gm. Swarzędz Pokaż na mapie ›
Odświeżone: Środa, 12 Listopad, 2025 16:25
4 300 zł
Szczegóły ogłoszenia
- Kategoria: Biura i lokale / Do wynajęcia
- Przeznaczenie:Biurowe
- Powierzchnia:129 m2
- Sprzedaż:Bez pośredników
- Cena: 4 300 zł
Opis oferty
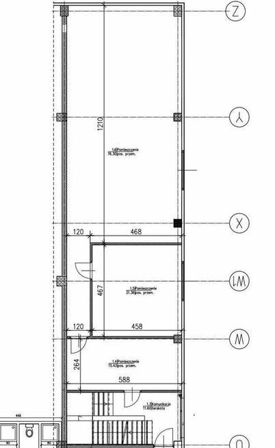
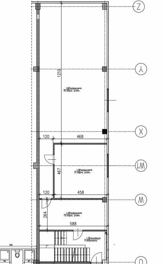
Do wynajęcia powierzchnia 129 m2 w budynku o wysokim standardzie oddanym do użytku w 2023 roku. Pomieszczenia znajdują się na piętrze (bez windy).powierzchnia 129 m2, na którą składa się:
- 21 m2 powierzchni biurowej
- 71 m2 powierzchni użytkowej z przeznaczeniem na biuro typu open space lub magazyn
- 15 m2 przedsionek
- 19 m2 ciąg komunikacyjny
- 3 m2 toaleta
Budynek znajduje się na ogrodzonym terenie przy głównej drodze 194, niecałe 2 kilometry od granicy administracyjnej Poznania. Zapraszam do kontaktu.
Sprawdź zainteresowanie tym ogłoszeniem
Wyświetlenia
Data dodania
Ostatnio widziany
Obserwujących
Wysłane zapytania
Odsłony telefonu
Powiadom o podobnych ogłoszeniach
Lokalizacja: Bogucin
Kategoria: Nieruchomości » Biura i lokale » Do wynajęcia
Cena: od 3500 zł do 5000 zł Powierzchnia : od 110 m2 do 148 m2
Chcę otrzymywać powiadomienia o nowych ofertach
Robert
Konto prywatne
Na Lento.pl od 28 sty 2014
Strona użytkownika
- Wypromuj ogłoszenie
- Zgłoś naruszenie
- Drukuj ulotkę
- Edytuj/usuń ogłoszenie
- Udostępnij ogłoszenie
- Dodaj na Facebook
















